office (+44) -203-6954041
(+44) -7954-777678
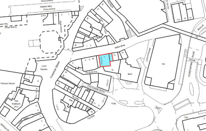
The properties are situated 50 meter from the new REEL movie theater on Baillie Street within close proximity to its junction with the main commercial Yorkshire Street and between the two large shopping centers.
Baillie Street generates a good pedestrian footfall, as it provides access from Yorkshire Street to the town's open market and Transport Interchange with a few hundred meters.
Among the premise which might be available is the shop number 8 which is 20 meter away from the main Yorkshire street and 120 m2 from the new Reel movie Theater.
The 16 Bailie Street just 80 mter from the Reel Theater is available end of March 2022.
To compare with the current situation:


New town center drawing perspective.pdf