office (+44) -203-6954041
(+44) -7954-777678
CARMARTHEN
You need to be an experienced builder to qualify for
this tenancy. It is the opportunity to exchange working
against a 30 year long rent income stream. The materials a special
offer grant to resurrect King Street converting 70% of the cost of
the refurbishment work which will be established by an architect and
a surveyor. So, the building materials and part of working time will
be also paid cash by the council. The grant is for the restoration
of building in King Street and managed by Mrs R. Brook of the
service Economic Development of
carmarthenshire.gov.wales
The building is listed and so there is no vacant business
rate while no in occupation by sub-tenant
I am offering you a 30 year long leasehold where you will
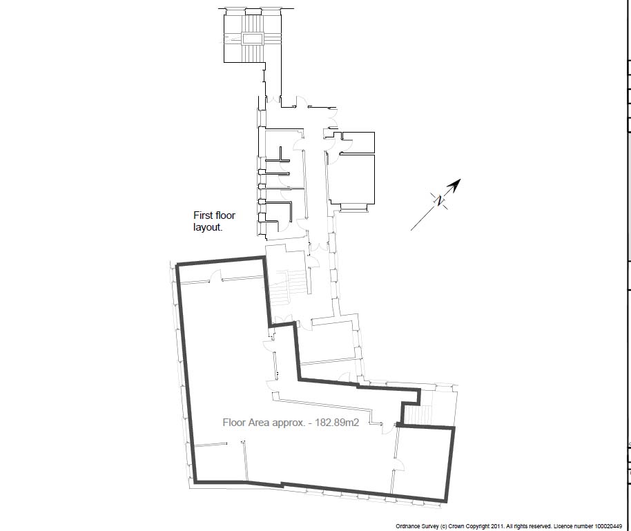
be able to sublet the third floor (300 m2) and also the both offices
on first and second in the Lyric buildings (400 m2). You will retain
50% of the rental profit for the duty to put back those offices and
keeping then into an appropriate standard to obtain tenants and also
refurbishing the comment part: stair case, toilets at the centre,
outside cladding, corridor. etc..
For information, the second floor alone (600 m2) did
generate an income of £57000 per annum with £33000 of service charge
by Cerebra from 2007 to 2019.
You will also be in position to profit for the repairs by
the service charge budgets paid by the tenant.
If you use the space for a commercial business
of your own, you will be able by paying me 50% of the rateable
value.


